RELATED: Boston Heights Village Council, Norwood and Bass Pro Plans
BOSTON HEIGHTS, Ohio – The Village of Boston Heights is moving forward with plans for a new Boston Heights Safety Center, a project designed to modernize facilities for police and fire departments while ensuring the long-term safety and identity of the community. Village officials, including Mayor Ron Antal and Council President Dave Maccarone, recently addressed residents to clarify the project’s status, funding, and vision, dispelling rumors and providing a clear outlook.
Why a New Boston Heights Safety Center is Needed
The current police department operates from the basement of the over 100-year-old Village Hall, a space described as cramped, outdated, and not up to modern safety standards. A review by the Bureau of Criminal Investigation identified numerous issues, some unfixable, leading to concerns that the village risks losing its police department without significant updates.
Mayor Antal and Council President Maccarone emphasized that losing the local police department would mean law enforcement duties would fall to the county sheriff’s office, potentially resulting in fewer patrols, higher costs, and a loss of the personal, local connection residents value. The proposed Boston Heights Safety Center aims to prevent this by providing a state-of-the-art facility that meets current and future needs.
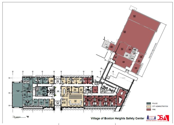
Project Scope and Design
The vision for the new facility involves connecting the existing fire station with a new wing for police and administrative offices. The fire station itself would also receive necessary upgrades. This design, developed with DS Architecture—a firm specializing in public safety facilities—aims to integrate seamlessly into the village’s landscape, honoring the strong mid-century character of existing buildings.
Renderings and a detailed floor plan are available for public viewing at Village Hall, showcasing a modern and functional municipal complex. The design takes into account growth and long-term needs, planning for the next five to ten years.
Funding the Boston Heights Safety Center: No Property Tax Increase Planned
A key concern among residents has been the funding for such an ambitious project. Village officials have been clear: no village funds have been spent to date on the conceptual planning, which has been supported by external grants.
The village has successfully secured or anticipates receiving $1.7 million in state and federal grants, including:
- $850,000 from the Ohio Senate OTSCIF Capital Bill
- An additional $850,000 expected from Congresswoman Emilia Sykes’ 2025 Community Funding Project
The target budget for the Boston Heights Safety Center is approximately $9 million. This will be financed responsibly through a combination of grants, bonds, existing village funds, and potential naming rights. Crucially, officials state that the bond will be paid back by regional income tax from businesses operating in the village, and there are currently no plans to use property tax money for the project.
What About the Old Village Hall?
The construction of a new Safety Center also raises questions about the future of the historic Village Hall. While the building has served the community for over a century, its maintenance has become increasingly difficult, with issues like frozen water pipes last winter.
Officials confirm there are no plans to tear down the existing Village Hall. Its future use is open for discussion, with ideas including repurposing it as a community center or a small local shop. Public input will be welcomed when the time comes to decide its next chapter.
Next Steps and Community Engagement
Mayor Antal and Council President Maccarone emphasized that while conceptual plans and designs are being evaluated, nothing has been finalized. Once the plans, cost estimates, and financing details are complete, a public meeting will be held to present all information openly before any council vote. Residents are encouraged to contact Mayor Antal or Council President Maccarone with any questions.
The project is seen as vital for the village’s future, especially in light of Ohio House Bill 331, which creates pathways for dissolving small municipalities unable to sustain essential services like police protection. The Boston Heights Safety Center is a proactive step to ensure the village maintains its identity and continues to provide high-quality services to its residents.
Residents can find the full 2025 Winter Newsletter, renderings of the proposed Safety Center, and more details on meetings and upcoming events at villageofbostonheights.com.





















